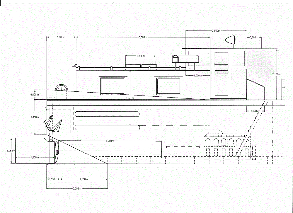
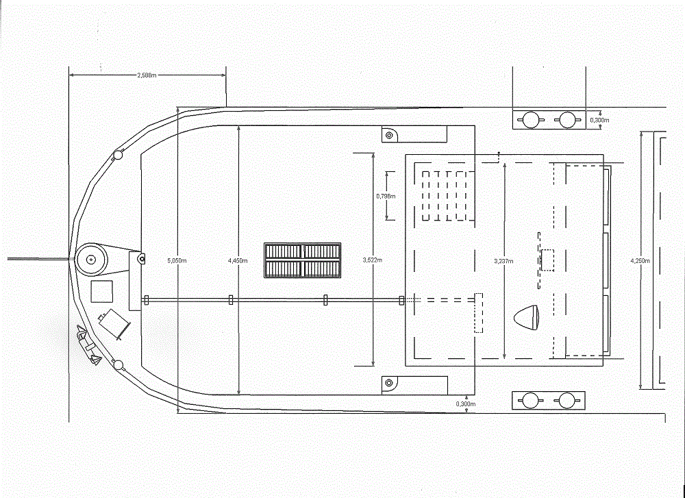
Schema Automoteur

Ici nous ne parlerons que de maquettes NAVALES....

Schema Automoteur

Messagepar gaëtan » Mer 4 Jan 2012 18:13

Bonjour,
Je sais que les plans de nos bon vieux bateaux que certain appel péniche d’autre Freycinet, personnellement je les nommerais ici automoteur, on peut aussi dire « automoteur au gabarit Freycinet » pour les non initier cela se rapporte à des valeurs moyenne de : 38,50 m de long 5,05 m de large 2,40 m de tirant d’eau, 4,80 m de hauteur hors tout sans le mât, le pavillon, les drapeaux bien sûr.
On me demande très souvent des plans mais pas facile a trouvé car pratiquement inexistant, J’ai donc pensé que les petit croquis que j’ai fait pourrais peut-être aider certain d’entre vous je n’ai pas la prétention d’avoir dessiné un plan non loin de moi cette idée, mais un croquis qui donne certaine côte et les mesures pour un plat bord, une cabine, une éveule avant, une hauteur de coque, une écoutille, les surfaces habitable a quelques centimètre carré ne change pas des masse d’un modèle à l’autre.
Ce qui change par contre ce sont les formes et là je ne peux hélas pas grand-chose pour vous car il faudrait dessiner le model type à condition d’avoir le relevé de côte.
Le plus important lors de la construction d’une maquette c’est la coque il faut se rapprocher aux maximum de la vérité dans l’image que le model renvoie pour un maquettiste le plus grand plaisir c’est de pouvoir dire « oui c’est la reproduction d’un model X construit au chantier Y année 19XX » après pour ce qui des équipements ils étaient bien souvent modulable lors de la commande.
Sur les croquis il n’y a pas toutes les côtes afin de ne pas surcharger mais si vous avez besoin d’une côte bien précise pas de problème y a qu’a demandé.
Il va de soi que j’ai dû réduire les schémas pour les mettre sur le forum j’espère que les côtes vont rester visible, dans le pire des cas pour les intéressaient je peux vous communiqué ces schémas par mail.

amicalement Gaëtan
Avatar de l’utilisateur
gaëtan
Membre aux multiples messages ;-)
Membre aux multiples messages ;-)
 
Messages: 1242
Inscription: Sam 19 Juil 2008 08:23
Localisation: neuf-brisach 68

Re: schema automoteur

Messagepar kikipuce » Mer 4 Jan 2012 19:14

Super Gaetan
kikipuce
Membre aux multiples messages ;-)
Membre aux multiples messages ;-)
 
Messages: 7357
Inscription: Ven 28 Aoû 2009 08:53

Re: schema automoteur

Messagepar ANDY » Mer 4 Jan 2012 19:18

C'est un schneider
Amicalement ANDY
Avatar de l’utilisateur
ANDY
Membre aux multiples messages ;-)
Membre aux multiples messages ;-)
 
Messages: 3100
Inscription: Mar 28 Juil 2009 09:09
Localisation: en navigation sur le borneo

Re: schema automoteur

Messagepar gaëtan » Mer 4 Jan 2012 19:30

ANDY a écrit:C'est un schneider


c'est vrai que cela a des ressemblances mais je n'ai pris aucun chantier de référence, j'ai dessiner une coque plus ou moins courante, c'était ça ou un type hublot, pas trop facile a construire pour un premier modèle.
question: les clans ou les courbes, de combien sont ils espacés 50 ou 60 cm ?
amicalement Gaëtan
Avatar de l’utilisateur
gaëtan
Membre aux multiples messages ;-)
Membre aux multiples messages ;-)
 
Messages: 1242
Inscription: Sam 19 Juil 2008 08:23
Localisation: neuf-brisach 68

Re: schema automoteur

Messagepar Eddy » Mer 4 Jan 2012 20:02

SUPERBE Gaëtan !!

PS : Ce n'est pas un Petite-Synthe ! :mrgreen:
Vagussement vôtre,
Eddy

N'oubliez pas de visiter le site VAGUS-VAGRANT
Avatar de l’utilisateur
Eddy
Administrateur
Administrateur
 
Messages: 12541
Inscription: Mer 7 Juin 2006 18:01
Localisation: Pont sur Yonne (89)

Re: schema automoteur

Messagepar ANDY » Mer 4 Jan 2012 21:58

En vrai 0,50 cm

Geatan 0.60 cm je n'en connais pas
par contre certain bateau ont moins que 0.50 cm
le borneo lui c'est 0.45 cm et je croix si je dit pas de betises certain sernaize ont 0.40 cm les ancien doit confirmer ?
Dernière édition par ANDY le Jeu 5 Jan 2012 09:57, édité 1 fois.
Amicalement ANDY
Avatar de l’utilisateur
ANDY
Membre aux multiples messages ;-)
Membre aux multiples messages ;-)
 
Messages: 3100
Inscription: Mar 28 Juil 2009 09:09
Localisation: en navigation sur le borneo

Re: schema automoteur

Messagepar gaëtan » Mer 4 Jan 2012 23:03

merci Andy
amicalement Gaëtan
Avatar de l’utilisateur
gaëtan
Membre aux multiples messages ;-)
Membre aux multiples messages ;-)
 
Messages: 1242
Inscription: Sam 19 Juil 2008 08:23
Localisation: neuf-brisach 68

Re: Schema Automoteur

Messagepar laurent H » Jeu 5 Jan 2012 18:42

Bravo
trés beau plan
laurent H
Nouveau membre
Nouveau membre
 
Messages: 4
Inscription: Mer 1 Juin 2011 07:23

Re: schema automoteur

Messagepar Eddy » Jeu 5 Jan 2012 18:59

ANDY a écrit:En vrai 0,50 cm

Geatan 0.60 cm je n'en connais pas
par contre certain bateau ont moins que 0.50 cm
le borneo lui c'est 0.45 cm et je croix si je dit pas de betises certain sernaize ont 0.40 cm les ancien doit confirmer ?


Je connais aussi des Petite-Synthe c'est 25cm !
En fait ils ont été doublé dès l'origine dans l'optique de les rallonger après ces bateaux.
C'est le cas notamment sur le BANCO.
Vagussement vôtre,
Eddy

N'oubliez pas de visiter le site VAGUS-VAGRANT
Avatar de l’utilisateur
Eddy
Administrateur
Administrateur
 
Messages: 12541
Inscription: Mer 7 Juin 2006 18:01
Localisation: Pont sur Yonne (89)

Re: Schema Automoteur

Messagepar gaëtan » Jeu 5 Jan 2012 19:34

merci, merci, je me suis posé la question quand j'ai fait le schéma de la salle des machines, comme je savais pas je les ai mis a 0,60 m, tu va me dire que je ne me rappel plus non plus de combien était relevé le planché, je me souvient juste qu'il fallait l'enlevé pour atteindre le carter du deutz et que le volant moteur était invisible sur une trentaine de centimètre
amicalement Gaëtan
Avatar de l’utilisateur
gaëtan
Membre aux multiples messages ;-)
Membre aux multiples messages ;-)
 
Messages: 1242
Inscription: Sam 19 Juil 2008 08:23
Localisation: neuf-brisach 68

Re: Schema Automoteur

Messagepar Eddy » Jeu 5 Jan 2012 19:50

Ah oui mais là tu parles de la hauteur de courbe Gaëtan ?
Je sais que sur le Vagrant ça allait, mais sur le Vagus elles étaient basses dans la salle des machines, et en chargeant... quelle galère s'il y avait un peu d'eau et d'huile !!
J'ai nettoyé les tôles de temps en temps au teepol :-)
Vagussement vôtre,
Eddy

N'oubliez pas de visiter le site VAGUS-VAGRANT
Avatar de l’utilisateur
Eddy
Administrateur
Administrateur
 
Messages: 12541
Inscription: Mer 7 Juin 2006 18:01
Localisation: Pont sur Yonne (89)

Re: schema automoteur

Messagepar ANDY » Jeu 5 Jan 2012 20:07

Eddy a écrit:
ANDY a écrit:En vrai 0,50 cm

Geatan 0.60 cm je n'en connais pas
par contre certain bateau ont moins que 0.50 cm
le borneo lui c'est 0.45 cm et je croix si je dit pas de betises certain sernaize ont 0.40 cm les ancien doit confirmer ?


Je connais aussi des Petite-Synthe c'est 25cm !
En fait ils ont été doublé dès l'origine dans l'optique de les rallonger après ces bateaux.
C'est le cas notamment sur le BANCO.


OUI Eddy mais je pense seulement dans la salle des machines pour renforce le carlingage du moteur sinon cela devait 0.50 m ?
Statio devrait confirmer je pense ?
Amicalement ANDY
Avatar de l’utilisateur
ANDY
Membre aux multiples messages ;-)
Membre aux multiples messages ;-)
 
Messages: 3100
Inscription: Mar 28 Juil 2009 09:09
Localisation: en navigation sur le borneo

Re: Schema Automoteur

Messagepar gaëtan » Jeu 5 Jan 2012 20:31

je suis de t'on avis Andy, je pense que dans le MCA il devait y avoir au moins 0,50 dessous le planché, par contre Eddy, les clans son dans l'alignement des courbes avec un renfort en bas et renfort en haut qui maintien le plat bord et par la même occasion le dinbord
amicalement Gaëtan
Avatar de l’utilisateur
gaëtan
Membre aux multiples messages ;-)
Membre aux multiples messages ;-)
 
Messages: 1242
Inscription: Sam 19 Juil 2008 08:23
Localisation: neuf-brisach 68

Re: Schema Automoteur

Messagepar gaëtan » Jeu 5 Jan 2012 20:47

je viens de retrouvé deux images, le problème ce jour là je n'avais pas de mètre sur moi, ce sont les clans d'un Strasbourg


amicalement Gaëtan
Avatar de l’utilisateur
gaëtan
Membre aux multiples messages ;-)
Membre aux multiples messages ;-)
 
Messages: 1242
Inscription: Sam 19 Juil 2008 08:23
Localisation: neuf-brisach 68

Re: Schema Automoteur

Messagepar ANDY » Jeu 5 Jan 2012 22:44

Geatan ce n'est pas les clans c'est les goussets que l'on voit sur les photos il relit les clans de la bordaille a ceux des plats bords la je croix sur les Strasbourg il y en a tout les mètres des goussets derrières le meublages il y a des clans espacé de 0,50 cm
Amicalement ANDY
Avatar de l’utilisateur
ANDY
Membre aux multiples messages ;-)
Membre aux multiples messages ;-)
 
Messages: 3100
Inscription: Mar 28 Juil 2009 09:09
Localisation: en navigation sur le borneo

Suivante

Retourner vers Les maquettes / schaalmodellen

Qui est en ligne

Utilisateurs parcourant ce forum: Aucun utilisateur enregistré et 3 invités

cron